hero-image-0
hero-image-1
hero-image-2
hero-image-3
hero-image-4
hero-image-5
hero-image-6
hero-image-7
hero-image-8

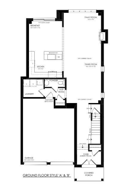
Peridot Plan

Woodhaven Aurora
Sold
Sold
4
3
1
From 2,630
Peridot Plan details
Peridot Plan is now sold.
Check out available nearby plans below.