FEATURED
Lancaster - Elev. B
King's Calling
Rural King, King
Lancaster - Elev. C
Lancaster - Elev. A
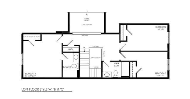
Monaco 1 Elev. 3 (3Bdrm w/ Loft)
Bayview Trail
Aurora Grove, Aurora
Lotus 1 (End)
Uplands of Swan Lake - Single Family Homes
Rural Richmond Hill, Richmond Hill
Monaco 1 Elev. 1 (3Bdrm w/ Loft)
Abruzzo
Monteverdi Estates
Aurora Estates, Aurora
Lotus 2 (End)