

















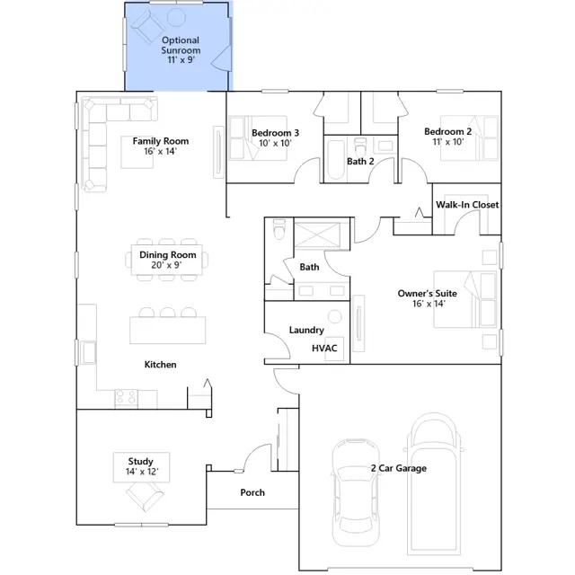
This single-story home provides a smart layout with the convenience of everything you need on one level. A flexible study is located near the entry which could also be used as a formal living or dining room. In the heart of the home is an open layout that connects the kitchen with center island effortlessly to the dining room and family room. There are three bedrooms in total including the large owner's suite with a spa-like bathroom and roomy walk-in closet. Optional upgrades available at select homesites.
Stay informed with Livabl updates on new community details and available inventory.