



















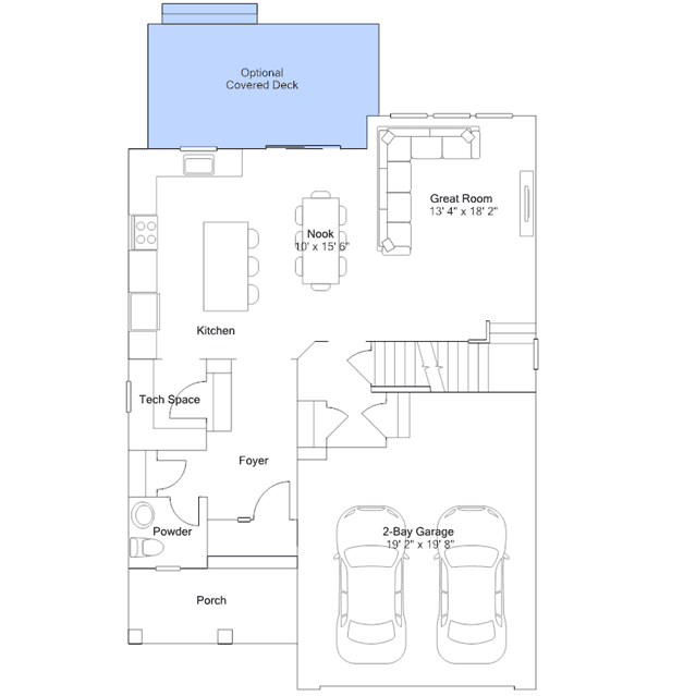
An open floorplan shared between the Great Room, kitchen and nook occupy the first level of this two-story home, offering direct access to the outdoor space at the back of the home. Four bedrooms provide enough room for the whole family all located on the second floor.