
























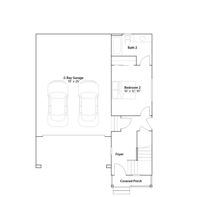
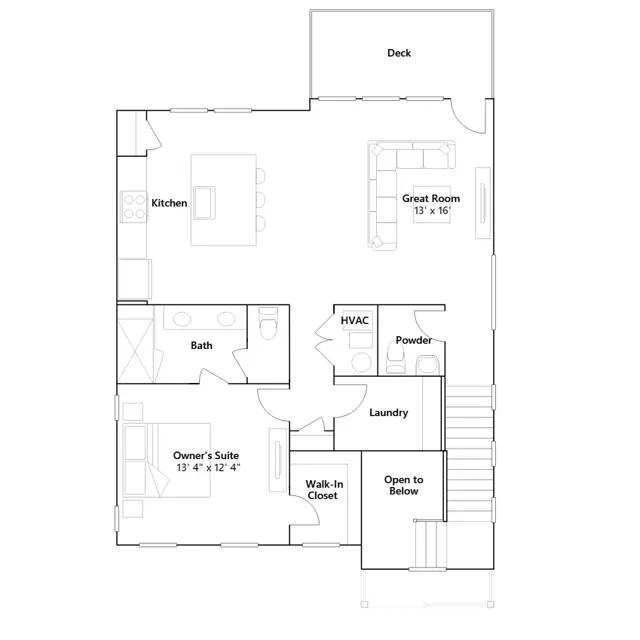
The first level of this two-story home is host to a spacious two-bay garage for storage, plus a secondary bedroom suite thats great for overnight guests or household members that need privacy. Upstairs, the kitchen, dining room and Great Room are situated among a convenient and contemporary open floorplan that features access to a deck for indoor-outdoor living and entertaining. The owners suite is located down the hall, and is comprised of a restful bedroom, en-suite bathroom and walk-in closet.
Stay informed with Livabl updates on new community details and available inventory.