















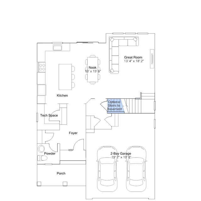
An open floorplan shared between the Great Room, kitchen and nook occupy the first level of this two-story home, offering direct access to the outdoor space at the back of the home. A tech space situated off the kitchen is great for working from home or getting paperwork done. Four bedrooms provide enough room for the whole family all located on the second floor. Among the upstairs bedrooms is the luxe owners suite.