



















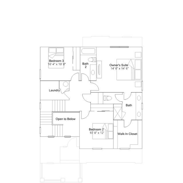
The first level of this two-story home showcases a generous open floorplan shared between the Great Room, kitchen and nook. All three bedrooms are located upstairs, including the luxe owners suite comprised of a restful bedroom, en-suite bathroom and walk-in closet.