














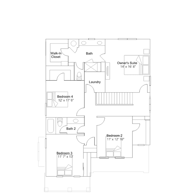
A study situated directly off the foyer provides an ideal space for those work-from-home days, while the open floorplan shared between the Great Room, kitchen and nook can be found down the hall on the first level of this two-story home. Four bedrooms occupy the second floor, offering enough space for the whole family.