





































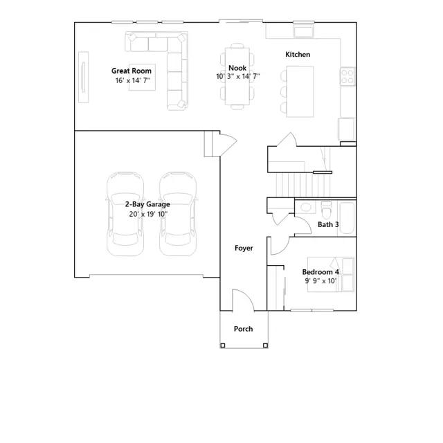
This new two-story home offers plenty of space to live and grow. A secondary bedroom and full bathroom are located off the foyer, leading to an open-concept floorplan that blends the kitchen, living and dining areas for seamless entertaining and multitasking. On the second floor, three additional bedrooms surround a versatile loft, including the lavish owners suite with a spa-inspired bathroom and walk-in closet.