































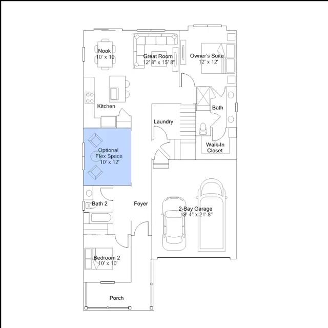
This brand-new home features everything needed for modern living on a convenient single level. Off the foyer, two secondary bedrooms are tucked to the side for enhanced privacy, leading to an open-concept layout consisting of the kitchen, nook and Great Room. A luxe owners suite is nestled into a private corner at the back of the home, complete with an en-suite bathroom and walk-in closet.