New Homes for Sale
Articles
Professionals
Log in
Sign up
Photos 4
Videos 0
Map
Interactive floor plan 0
Virtual 0
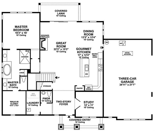
Anna Maria Classic Plan
By
Toll Brothers
   |  Â
Toll Brothers at Atlantic Beach Country Club - The Ambassador Collection
Community
Available homes
Get updates
Save
Request info
Request info
Community
Available homes
Request info
Get updates
Save
Request info
Toll Brothers at Atlantic Beac...
Get updates
Request info
Sold
Sold
4
4
From 3,344
Anna Maria Classic Plan details
Address:
Â
Atlantic Beach, FL 32233
Plan type:
Â
Detached Two+ Story
Beds:
Â
4
Full baths:
Â
4
SqFt:
Â
From 3,344
Ownership:
Â
Fee simple
Interior size:
Â
From 3,344 SqFt
Lot pricing included:
Â
Yes
Anna Maria Classic Plan is now sold.