hero-image-0
hero-image-1

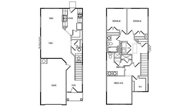
6270 ROCKAWAY ROAD

Woodward Hills Townhomes
Sold
Sold
3
2
1
1,461
6270 ROCKAWAY ROAD details
unit-banner-image
unit-banner-image
unit-banner-image
6270 ROCKAWAY ROAD is now sold.
Check out available nearby townhomes below.