




















































Get additional information including price lists and floor plans.
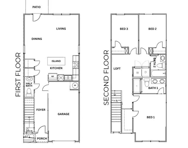
Introducing D.R. Horton's newest townhome floor plan, the Pearson. This thoughtfully designed, two-story townhome offers three spacious bedrooms, 2.5 baths, and a convenient one-car garage. Future homeowners will appreciate the impressive standard features that come with the Pearson. Enjoy luxury vinyl plank flooring throughout the first floor, providing both style and durability. The kitchen is equipped with stainless steel appliances, quartz countertops, and led lighting, creating a modern and efficient workspace. The open layout allows the kitchen to overlook the family and breakfast areas, making it perfect for entertaining guests and family gatherings. Additionally, the Pearson comes with smart home technology, ensuring that your home is not only beautiful but also equipped with the latest in modern conveniences. This home is waiting for you to call it y...
Stay informed with Livabl updates on new community details and available inventory.