













































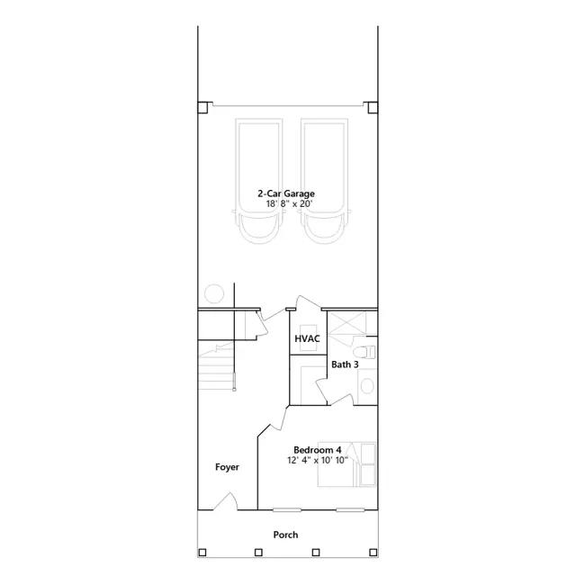
This new three-story townhome with a two-car garage features a smart layout that provides ample room to grow and entertain. Upon entry into the home is a versatile bedroom suite to accommodate independent living, while upstairs is the main living area. It showcases a well-equipped kitchen, dining room and a welcoming Great Room, which is elevated by a center fireplace and rear deck. Residing on the top floor are two secondary bedrooms and a tranquil owners suite.
Stay informed with Livabl updates on new community details and available inventory.