hero-image-0
hero-image-1

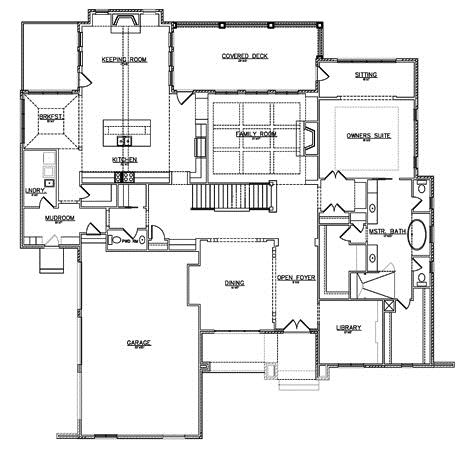
The Brighton Plan

The Enclave at Jett Ferry
Sold
Sold
5
5
From 6,000
unit-banner-imageunit-banner-imageunit-banner-image
The Brighton Plan details
The Brighton Plan is now sold.
Check out available communities below.