hero-image-0
Pratt Stacks
Sold
Sold
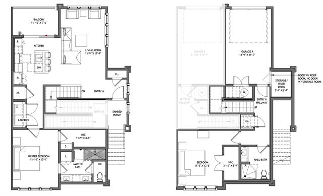
2
2
1,493
Homesite 409 details
unit-banner-image
unit-banner-image
unit-banner-image
Homesite 409 is now sold.
Check out available nearby townhomes below.