hero-image-0

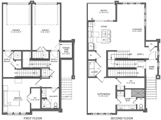
1050 Stacks Ave

Pratt Stacks
Sold
Sold
2
2
1,493
1050 Stacks Ave details
unit-banner-image
unit-banner-image
unit-banner-image
1050 Stacks Ave is now sold.
Check out available nearby townhomes below.