The Emaline
Preserve at Lenox Park
Lenox Park, Atlanta
Druid Grand
Toll Brothers at Overlook at Lenox Park - Briarwood Collecti
Calliope
Park Vue
Rockdale, Atlanta
Hummingbird
Druid Elite
Druid
Indigo
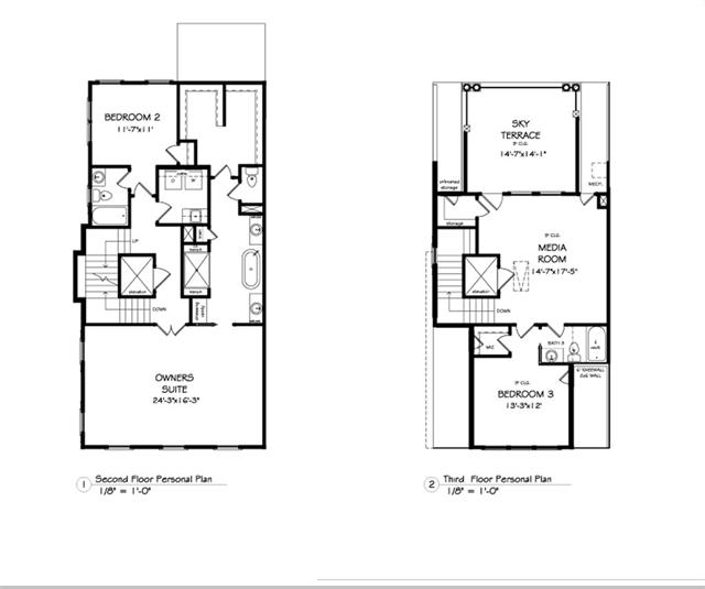
No. 2,3,6,9 and 10
The Berkeleys
Berkeley Park, Atlanta