hero-image-0

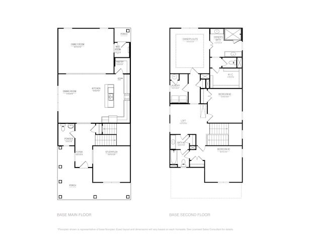
Clifton Plan

Empire Bixton
Sold
Sold
3
2
1
From 2,558
unit-banner-imageunit-banner-imageunit-banner-image
Clifton Plan details
Clifton Plan is now sold.
Check out available nearby plans below.