
























Images coming soon
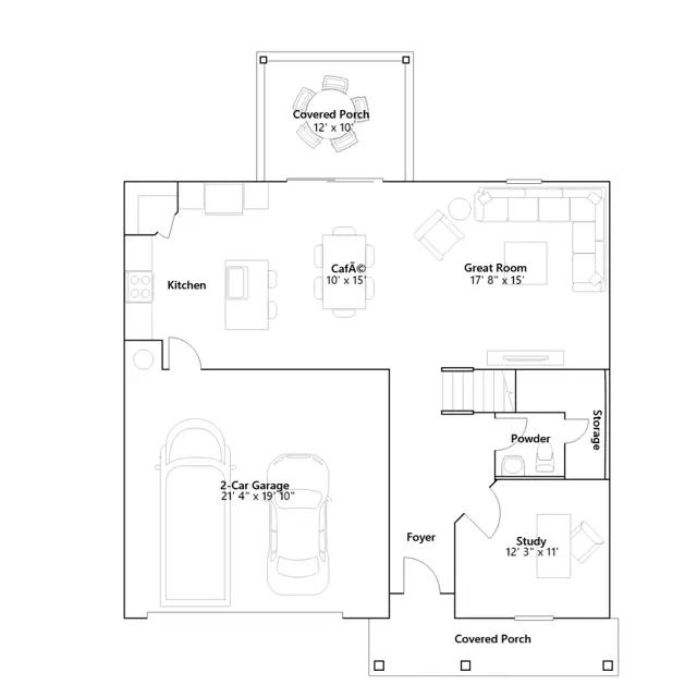
This new two-story home enjoys a convenient layout with room to grow. Upon entry, visitors are greeted by a versatile study, perfect as a studio space or sitting area. An inviting open layout combines a kitchen with the living and dining areas, and a covered porch offers enhanced outdoor living. Five bedrooms can be found upstairs, including the expansive owners suite, tucked into a private corner at the back of the home for optimal comfort.
Stay informed with Livabl updates on new community details and available inventory.