hero-image-0
hero-image-1
hero-image-2
hero-image-3
hero-image-4
hero-image-5
hero-image-6

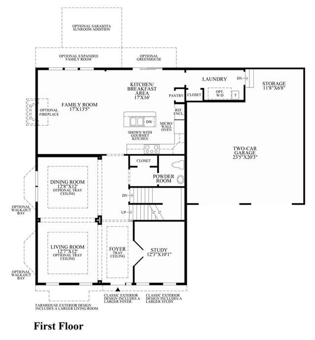
Vansant Plan

Moorefield Green - The Hunting...
Sold
Sold
4
2
1
From 3,702
Vansant Plan details
Vansant Plan is now sold.
Check out available nearby plans below.