
































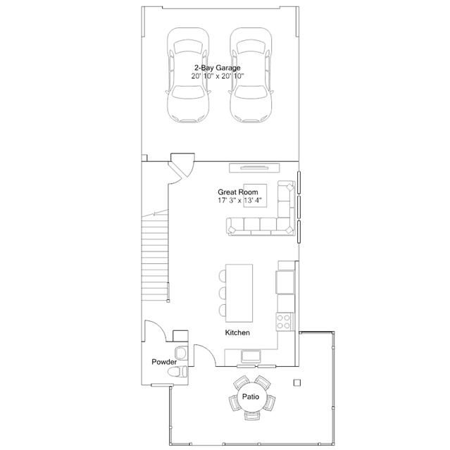
This two-story home offers a well-designed layout, with the first floor showcasing an open design shared between the Great Room and a kitchen with a large island that opens to an expansive patio area. The second floor hosts a small loft surrounded by three bedrooms, including the luxurious owner's suite, complete with an en-suite bathroom and walk-in closet.