


























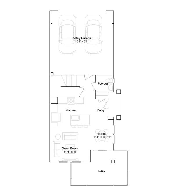
This two-story home offers a great layout with the first floor dedicated to shared living. An open design spans from the entry into a kitchen with island, dining nook and Great Room, while a patio provides indoor-outdoor living opportunities. The second floor features a loft surrounded by three bedrooms, including the luxe owner's suite.