











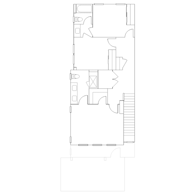
This two-story home offers a smart layout. The first floor showcases a large patio that welcomes you before entering into the Great Room, which shares an open footprint with the dining area and kitchen. Upstairs are three bedrooms, including the use owner's suite with a spa-like bathroom and walk-in closet.