















































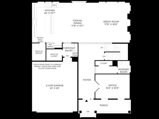
A desirable open-concept floor plan defines the elegantly crafted Rouse, featuring an idyllic blend of luxury and charm. A spacious porch and foyer hallway opens onto the expansive great room and casual dining area that offers desirable access to the rear yard. The kitchen is expertly crafted, complemented by a large center island with breakfast bar, wraparound counter and cabinet space as well as a walk-in pantry. Highlighting the serene primary bedroom suite are dual walk-in closets and a palatial primary bath complete with dual vanities, a large soaking tub, a luxe shower with seat, linen storage, and a private water closet. The sizable secondary bedrooms, one with a private bath and two sharing a bath with a separate dual sink vanity, offer ample walk-in closets and are central to an easily accessible laundry space. A generous office can be found off the foye...