
























































Images coming soon
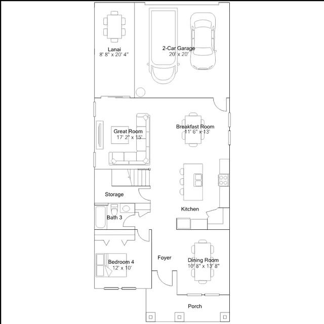
An elevated take on a classic design, this new two-story home exudes elegance. Upon entry is a formal dining room hugging the foyer, while down the hall is a convenient open-plan living area with access to an attached lanai. On the same level is a bedroom ideal for overnight guests. Occupying the top floor is a versatile loft surrounded by the remaining bedrooms and the tranquil owners suite, which comes with a private bathroom.