






















































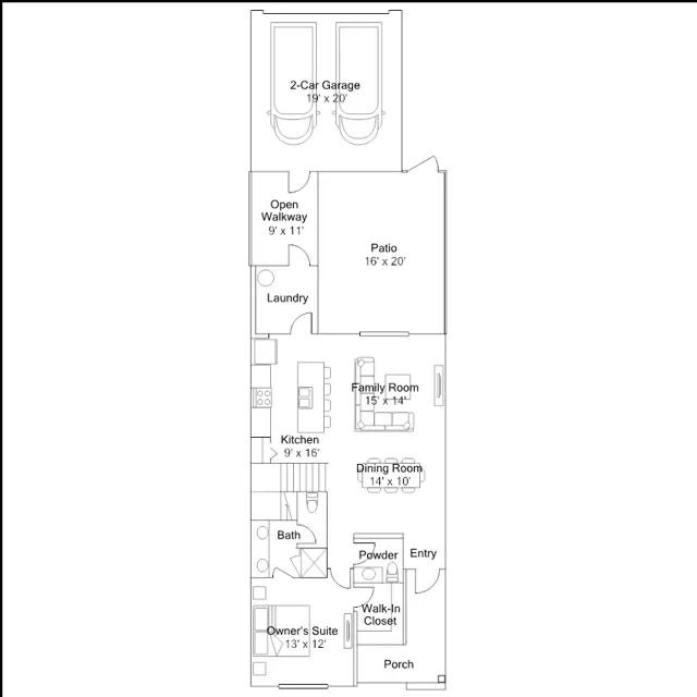
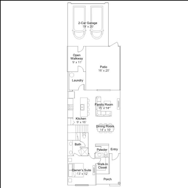
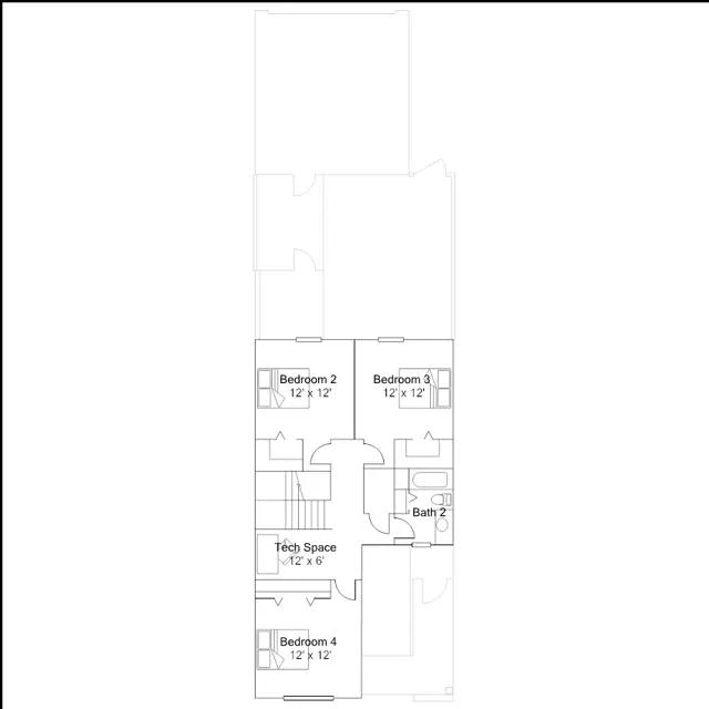
This spacious two-story townhome is an entertainers dream, showcasing an open walkway and patio that provides endless opportunities for outdoor fun. On the first floor is an open living space, along with the owners suite with a spa-inspired bathroom. Upstairs are all three secondary bedrooms and a convenient tech area.
Stay informed with Livabl updates on new community details and available inventory.