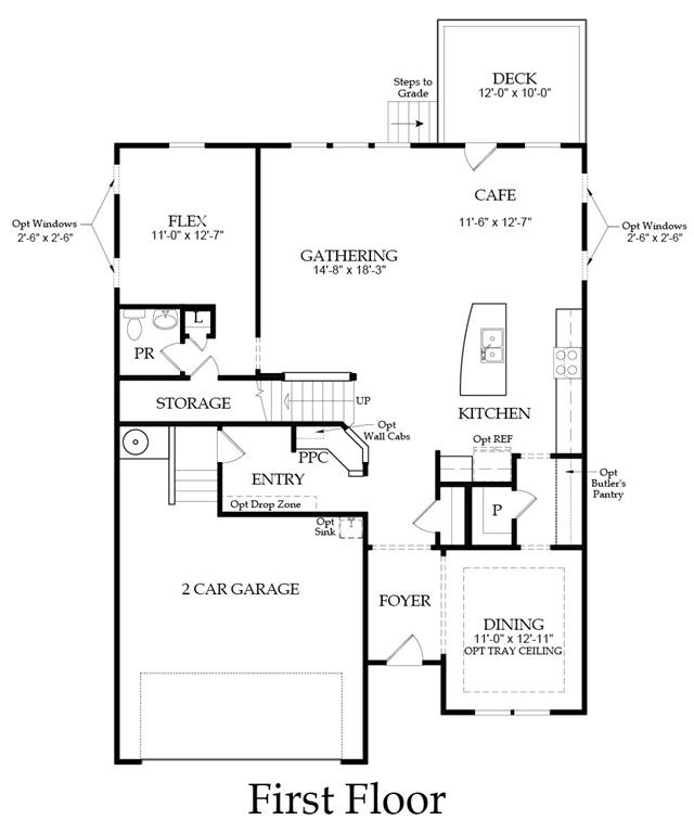
HARTWELL
The Estates at Horton Park
Apex
Stoneridge
Weston Reserve
Dunmore
Preston
Huxley
Millstone
West Cary, Cary
Halstead
Collins
Friendship Village