





















Get additional information including price lists and floor plans.


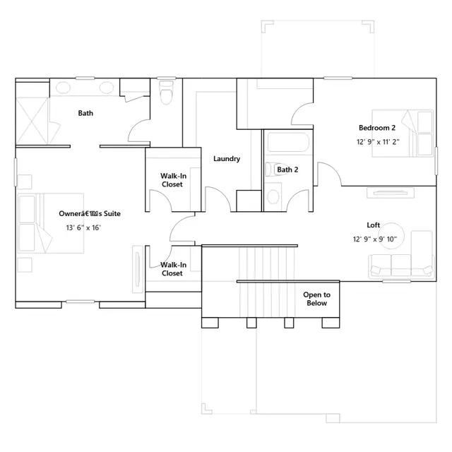
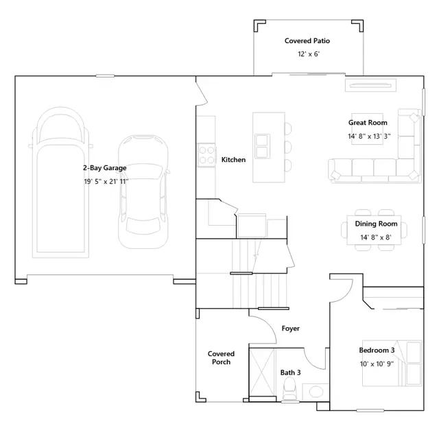
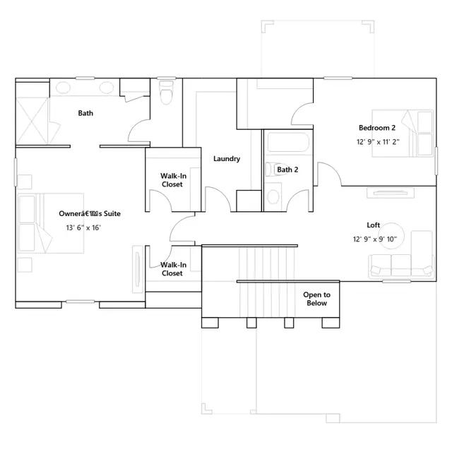
This new two-story home boasts a spacious and modern layout. A bedroom and full bathroom are located near the front of the home off the foyer, near a flexible open-concept layout with easy access to a covered patio for seamless indoor-outdoor living. On the second level, a versatile loft offers a convenient shared living space easily accessible from an additional bedroom and lavish owners suite, complete with a full bathroom and walk-in closet.
Stay informed with Livabl updates on new community details and available inventory.