
















































Images unavailable
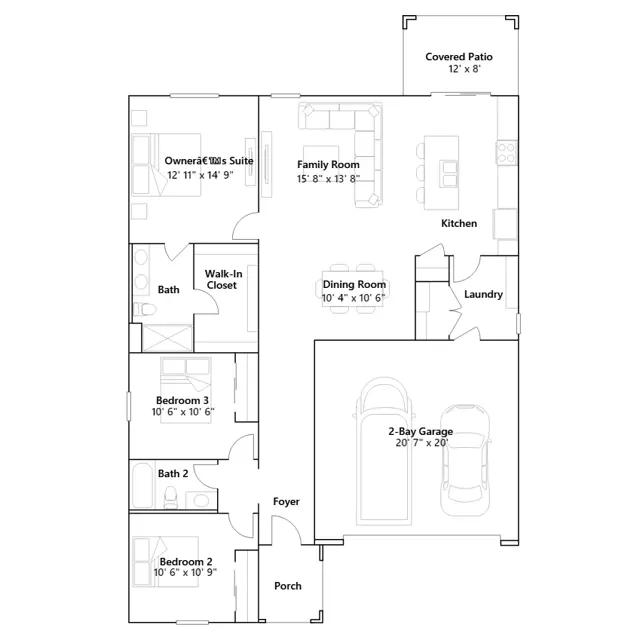
This new three-bedroom home offers convenient single-floor living. Two bedrooms are located off the foyer, leading to a spacious and flexible open-concept floorplan with access to an inviting covered patio. The luxe owners suite is nestled into a private rear corner, complete with a full bathroom and walk-in closet.