













































































































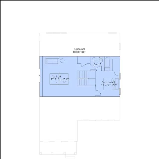
The largest floorplan in this collection, this expansive two-story home combines comfort with modern elegance. Standing at the heart of the first floor is an open-plan Great Room with a center fireplace, which melds into a well-equipped kitchen and both casual and formal dining areas to prioritize ease of living. All four bedrooms and a loft occupy the top level, including the lavish owners suite. Completing the home are a secluded study, a lower-level recreation room and a two-car garage for versatile needs.
Stay informed with Livabl updates on new community details and available inventory.