


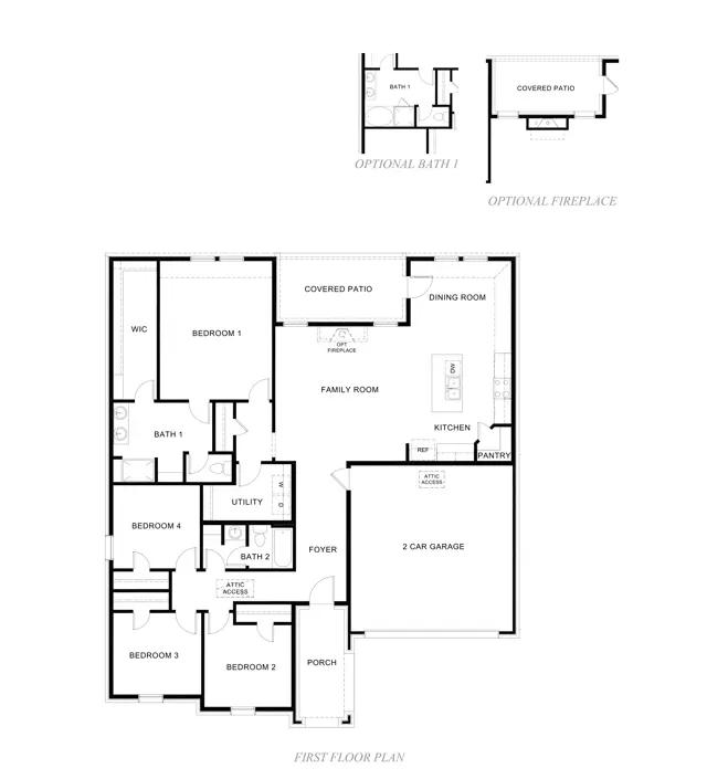
Introducing the H50D Dawson at the Woods at Lindsey Place in Anna, TX. Inside this 4-bedroom, 2-bathroom home, youll find 1,946 square feet of comfortable living. The living area is an open concept, where your kitchen, living, and dining areas blend seamlessly into a space perfect for everyday living and entertaining. The energy efficiencies included in this new construction home are sure to keep you comfortable in the heat of summer and the colder months. The kitchen features an island, stainless steel dishwasher and range, and spacious pantry which are sure to both turn heads and make meal prep easy. In every bedroom youll have carpeted floors and a closet. Whether these rooms become bedrooms, office spaces, or other bonus rooms, there is sure to be comfort. The primary bedroom has its own attached bathroom that features a spacious walk-in closet and all the ...
Stay informed with Livabl updates on new community details and available inventory.