









































Get additional information including price lists and floor plans.
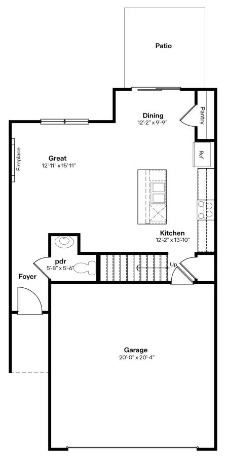
Welcome to the Sydney floor plan in the Kimberley Crossing Townhomes community in Ankeny, IA. This popular two-story townhome features 3 bedrooms, 2.5 bathrooms, a 2-car garage, and 1,511 sq. ft. of comfortable living space, complete with all appliances included. As you enter through the front door, the foyer leads past a guest bath into the spacious living room, complete with an electric fireplace and large windows that fill the main level with natural light. The open-concept kitchen overlooks the living and dining areas and features white cabinetry, quartz countertops, stainless steel appliances, a generous pantry, and a built-in island with seating for the adjacent dining nook. Upstairs, the oversized primary bedroom offers a private bath, large walk-in closet, and plenty of space for a variety of furniture arrangements. Two additional bedrooms share a guest...
Stay informed with Livabl updates on new community details and available inventory.