




















Get additional information including price lists and floor plans.
Images coming soon
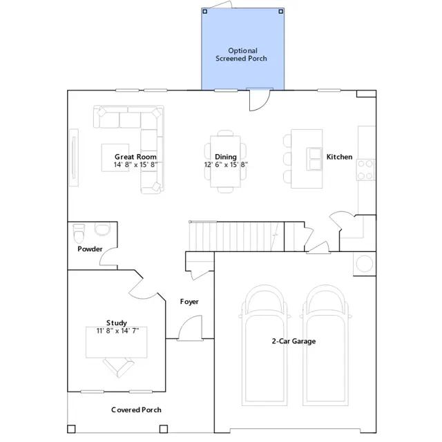
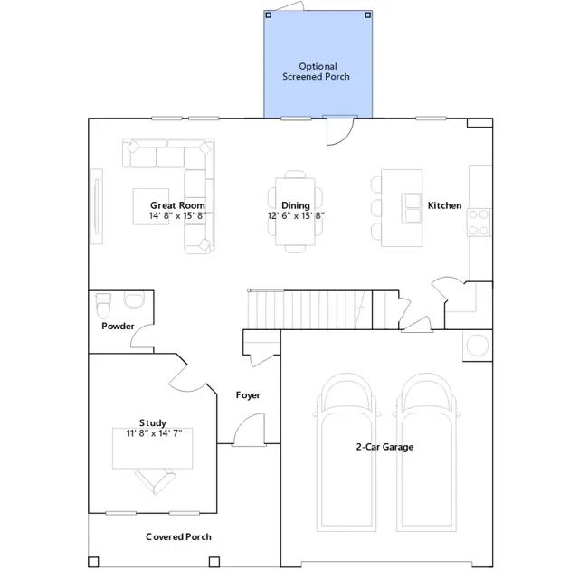
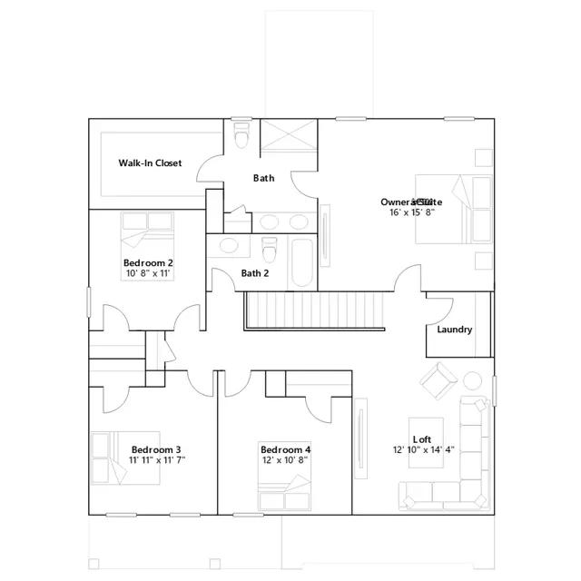
This new two-story home is designed for gracious living. Upon entry is a Ring Doorbell which is included in the Smart Home Technology. The study, located right off the foyer, is ideal for at-home work, followed by an airy Great Room, complete with an optional fireplace, that connects seamlessly to the kitchen and dining area. Luxury vinyl plank flooring extends throughout the first floor giving an elevated finish. Nearby is a rear patio to extend activities outdoors. Residing on the upper level are all four bedrooms and a versatile loft to provide additional shared living space. Bathrooms on the second-floor feature ceramic tile flooring. A two-car garage completes this modern plan. Experience the perfect blend of small-town charm and modern living in Angier, NC. Residents are located near easy access to Downtown shops and dining, and minutes to major highways f...
Stay informed with Livabl updates on new community details and available inventory.