hero-image-0
hero-image-1
hero-image-2

174 Burford Way

By

DRB Homes

   |   

Cotswold

Cotswold
Sold
Sold
3
2
1
2,289
174 Burford Way details
174 Burford Way is now sold.
Check out available nearby homes below.

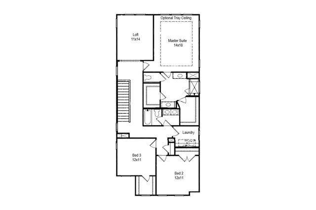
Floor plan

Sold
VIRTUAL TOUR

Callaway

Cotswold

Two car garage single family home with mudroom and powder room. Well-appointed kitchen with walk-in pantry and large island that opens to the spacious family room and adjoining breakfast area. Master Suite with optional tray ceiling offers a large, en suite bath with 2 separate vanities, 2 separate walk-in closets, large walk-in shower and private water closet. A generous loft, 2 secondary bedrooms, full bath with dual sink vanity and a conveniently located laundry room complete the 2nd floor. Optional 4th bedroom in lieu of loft.