






































Get additional information including price lists and floor plans.
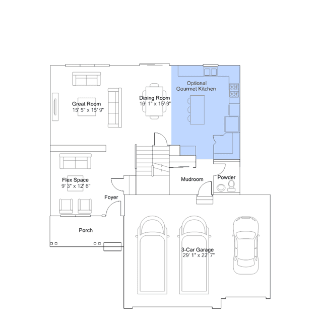
This new two-story home is a family-friendly haven that offers an open-plan layout among the great room, dining room, and kitchen. The first-floor flex room adds additional living space that could be used as a home office. On the second floor are three secondary bedrooms and a generously sized owners suite.
Stay informed with Livabl updates on new community details and available inventory.