


























Images unavailable
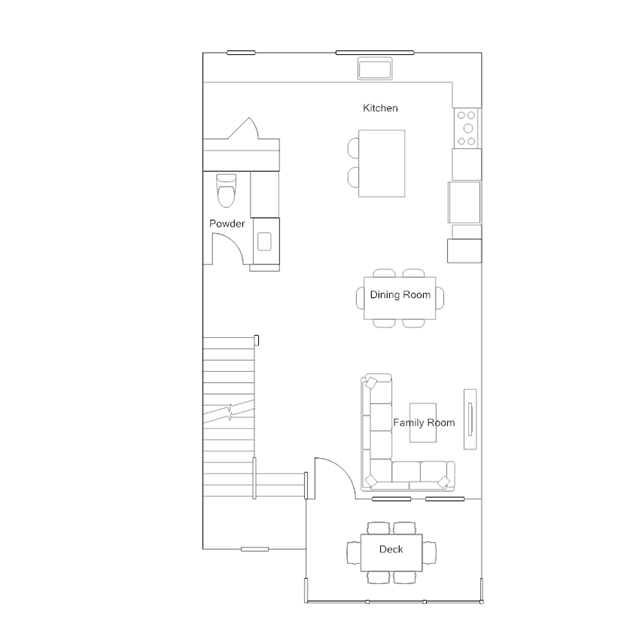
The first level of this three-story townhome is host to a versatile office that can easily be used as a media room or workspace. Upstairs, the kitchen, family and dining rooms are situated on the second floor among a convenient open floorplan, offering access to an outdoor deck for effortless entertaining. Three bedrooms can be found on the top floor, including the luxurious owners suite.