




































































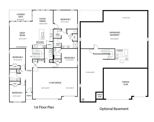
The Cortland floor plan by D.R. Horton is a thoughtfully designed single-story home offering 2,278 square feet of living space. This layout includes 4 bedrooms, 3 bathrooms, and a spacious 3-car garage, providing ample room for families of various sizes. The expansive great room seamlessly connects to the kitchen, fostering a welcoming environment ideal for both daily living and entertaining. Equipped with abundant cabinetry, generous countertops, a sizable center island, and a corner walk-in pantry, the kitchen serves as the heart of the home. The primary bedroom features an en-suite bathroom with dual vanities, a luxurious shower, and a spacious walk-in closet, offering a serene retreat within the home. Three supplementary bedrooms provide flexibility for guest accommodations, home offices, or play areas. Access the covered patio from the casual dining ar...
Stay informed with Livabl updates on new community details and available inventory.