












































Get additional information including price lists and floor plans.
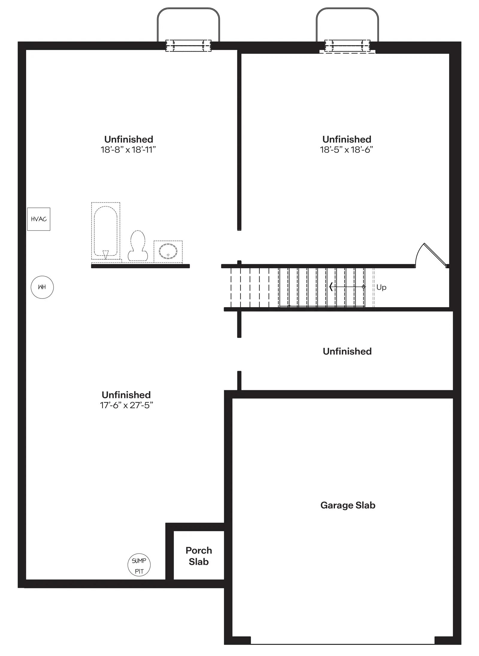
The Hamilton is a popular ranch-style floor plan featured in Stonebridge in Altoona, IA. Inside this 3-bedroom, 2-bathroom home, youll find 1,498 sq. ft. of comfortable living space .This ranch style home optimizes living space with an open concept kitchen overlooking the living room, dining area, and back patio/deck. Entertaining is a breeze, as this charming single-family home features the living room and dining area in the heart of the home. The gourmet kitchen features white cabinetry, quartz countertops, stainless steel appliances, a built-in island, and a large corner pantry with tons of storage space. In every bedroom youll have carpeted floors and a spacious closet. Whether these rooms become bedrooms, office spaces, or other bonus rooms, is up to you as this floor plan makes the perfect home for every stage of life. The primary bedroom, locate...
Stay informed with Livabl updates on new community details and available inventory.