




















Get additional information including price lists and floor plans.
Images coming soon
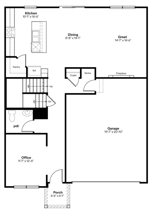
Welcome to the Holland floor plan at Edgewood Trail in Altoona, IA. This 2-story home offers 5 bedrooms, 3.5 bathrooms, a 3-car garage, and 2,929 sq. ft. of living space. Multiple exterior options and an open-concept layout make this home a popular choice. The foyer leads to a flex room perfect for an office, a guest bathroom, and access to the garage and stairs. The heart of the home features a living room with 9-ft ceilings, an electric fireplace, and a gourmet kitchen with quartz countertops, stainless steel appliances, subway tile backsplash, a walk-in pantry, and an oversized island for gathering. Sliding glass doors open to the back patio, making entertaining easy. Upstairs, three secondary bedrooms share a bathroom with dual vanities, a water closet, and tub, along with an oversized laundry and bonus room for extra flexibility. The primary bedroom offers...
Stay informed with Livabl updates on new community details and available inventory.