


















Get additional information including price lists and floor plans.

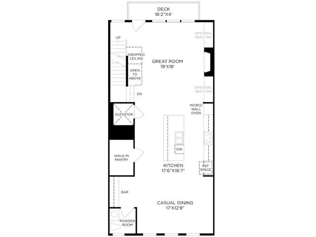
Step into luxury living with The Vickery. The inviting covered entry sets the tone for warmth and comfort as you enter. Designed for seamless living, the flow from the spacious flex room to the second-floor main living area offers an expansive great room, casual dining space, and a covered large deck with multi-slide stacked doors perfect for everyday living and entertaining. The centerpiece of this home is the well-appointed kitchen, featuring a large center island with a breakfast bar for effortless meal preparation. Retreat to the luxurious primary bedroom suite on the third floor, complete with dual walk-in closets and a spa-like primary bath with dual vanities, a spacious luxe shower with a seat, freestanding tub, and linen storage all tailored for your ultimate comfort. Find serenity on the fourth floor in your own private sanctuary, featuring an additional...
Stay informed with Livabl updates on new community details and available inventory.