hero-image-0
hero-image-1

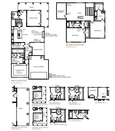
Huntington Plan

By

Empire Homes

   |   

Halcyon

Halcyon
Sold
Sold
3
3
1
From 2,809
unit-banner-imageunit-banner-imageunit-banner-image
Huntington Plan details
Huntington Plan is now sold.
Check out available nearby plans below.