
























































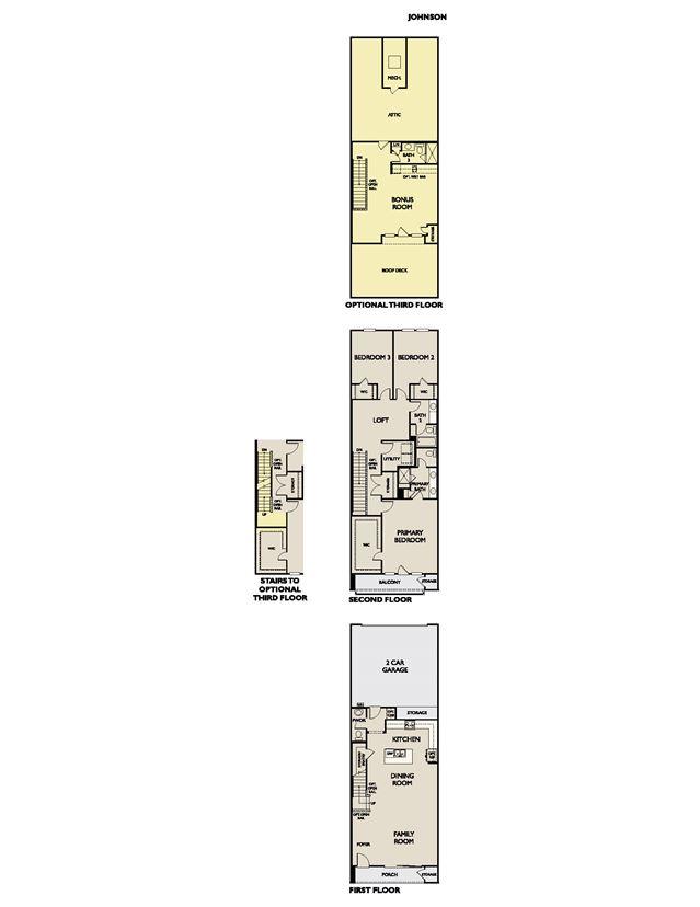
New Ashton Woods Townhome floor plan,this beautifully designed two-story townhome by Ashton Woods offers just over 2,000 square feet of stylish and functional living space featuring 3 bedrooms and 2.5 bathroomswith the option to add a third floor for even more flexibility. The inviting front porch welcomes you into the first floor, where 10-foot ceilings and an open-concept layout create a bright and spacious environment. The gourmet kitchen is outfitted with a large eat-in island, tile backsplash, 42-inch upper cabinets, Moen faucets, stainless steel appliances, luxury vinyl plank flooring, and a generous walk-in pantry. Upstairs, a loft provides a natural separation between the private primary suite and the two secondary bedrooms. The primary suite features a spacious walk-in closet, dual vanity sinks, a luxurious tile shower with glass enclosure, and Moen fixt...
Stay informed with Livabl updates on new community details and available inventory.