


















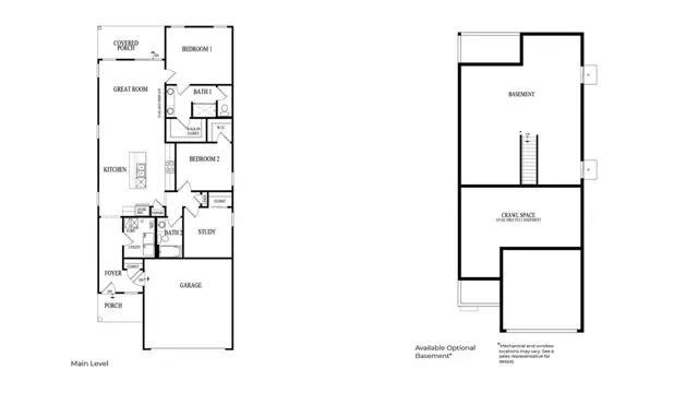
Step into the Logan, a featured plan in our Grand Reserve community in Algonquin, Illinois. This ranch style plan provides the perfect combination of low maintenance living and functionality. Inside this 2 bedroom, 2 bathroom home, you will find 1,288 square feet of single level living space. Entering the home, you will pass the laundry room, a closet, and access to the garage. The floor plan opens up to the kitchen and great room space. The kitchen is complete with modern stainless-steel appliances, walk-in pantry, and a center island that is great for meal prep, casual dining, or entertaining guests. The entryway between the kitchen and great room leads to a secondary bedroom and full bath. Enjoy your primary bedroom suite with an attached bathroom located at the back of the home for privacy. The en suite bathroom includes a dual sink vanity, walk-in closet,...