
















































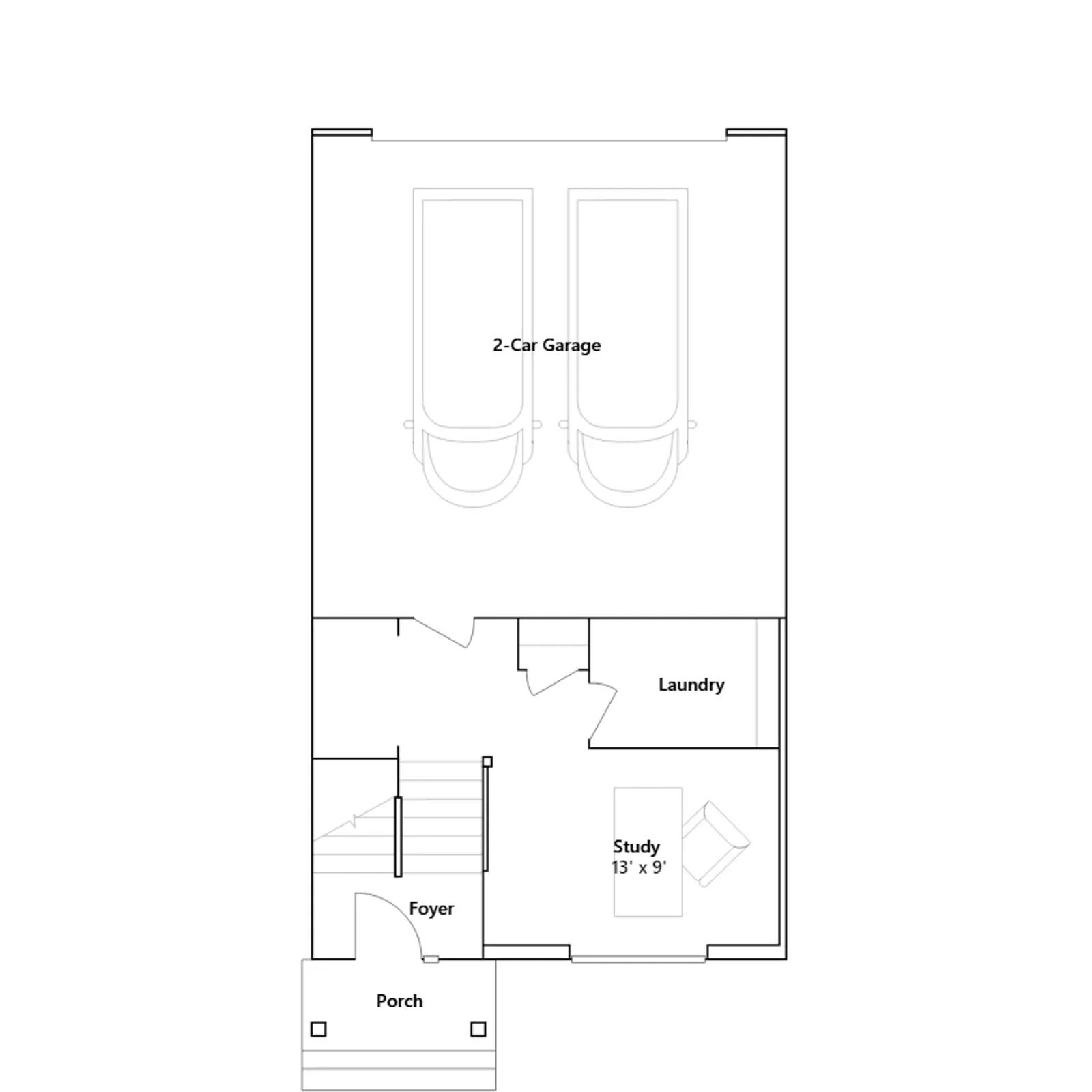
This new three-story home is ready for households of any size. On the first floor is a versatile and private study. An open-concept floorplan shared between the kitchen, living and dining areas makes up the second level, with a deck offering convenient outdoor access. Three bedrooms comprise the third floor, including the luxurious owners suite with an en-suite bathroom and walk-in closet.
Stay informed with Livabl updates on new community details and available inventory.