






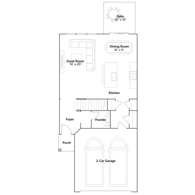
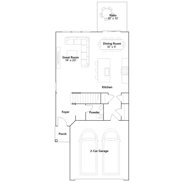
This new two-story townhome design combines comfort and elegance. On the first floor, the Great Room, which is the heart of this home, extends effortlessly to the dining room and kitchen in an open-plan layout. The patio enhances outdoor enjoyment. On the second floor, two secondary bedrooms and a spacious owners suite provide restful retreats for family members or overnight guests.
Stay informed with Livabl updates on new community details and available inventory.