



























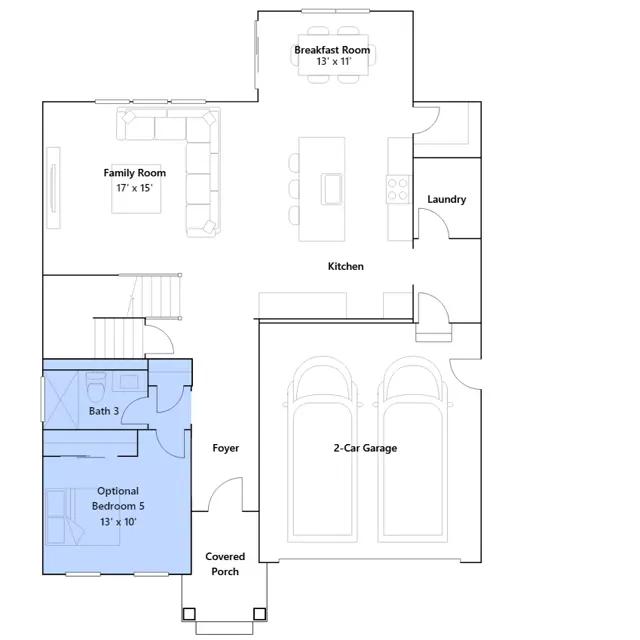
This new two-story home is optimized for gracious living. The first floor features a family room for great gatherings, a kitchen with a large pantry for adventurous cooks, a breakfast room for memorable meals and flex space for varied uses. Upstairs are a spacious loft and four bedrooms including the owners suite, which all have walk-in closets. Adding a fifth bedroom and full bathroom on the first floor is an option.
Stay informed with Livabl updates on new community details and available inventory.