


































































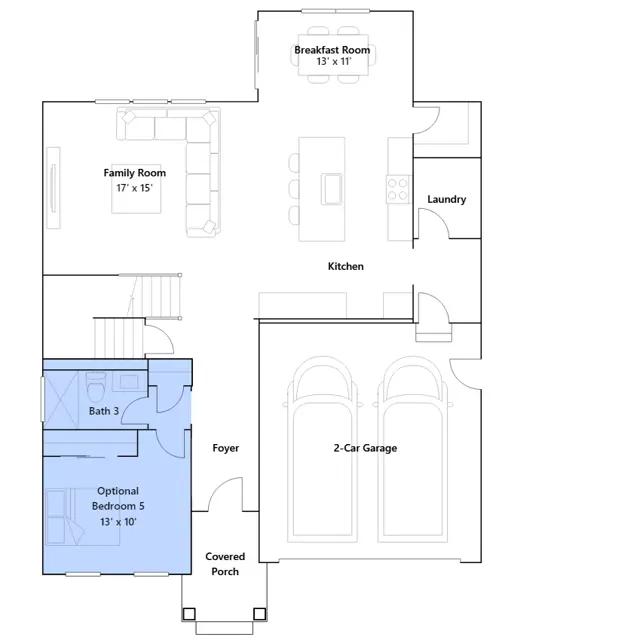
This new single-story home is a family-friendly haven. It features an open design among the welcoming family room, well-equipped kitchen and dining room, which has sliding-glass doors providing direct access to the covered patio. Two secondary bedrooms and the luxe owners suite all offer walk-in closets. Adding a sunroom is an appealing option.
Stay informed with Livabl updates on new community details and available inventory.