


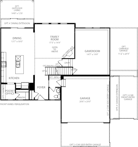
The Alwick is a charming 2-story plan with an abundance of open and spacious living. Upon entering the main foyer of the home, you'll view an open kitchen/dining area and 2-story family room. You can choose to expand the first floor space to include a relaxing sunroom off the dining area. Step down to the large gameroom, which is situated just off the family room. This space can be converted to a private guest suite with adjoining full bath. The second floor showcases a secluded owner's suite and bath - options here are a garden bath with soaking tub or a "super shower". You'll also enjoy three additional bedrooms, a full bath and a second floor laundry room. An optional loft or 5th bedroom in lieu of the volume space over the family room will give you added space for family living. Plus, an optional finished lower level recreation room will...