hero-image-0
hero-image-1
hero-image-2

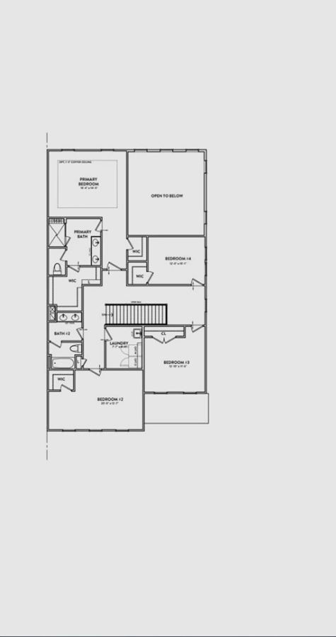
Burle Plan

By

Van Metre

   |   

South 620

South 620
Not Available
Not available
4
2
1
From 3,048
unit-banner-imageunit-banner-imageunit-banner-image
Burle Plan details